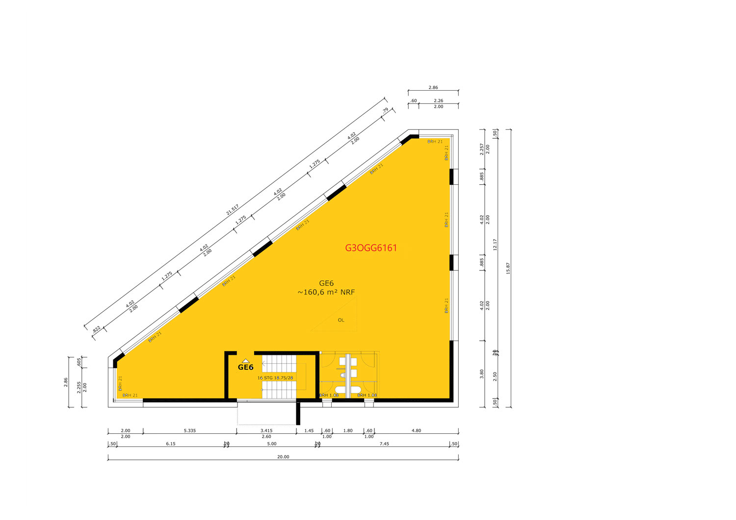
Gewerbliche Einheiten
An der Spitze des Gebäudeensembles entsteht eine gewerbliche Einheit, welche sich durch ihre klare Formensprache, ihrer leichten Zugänglichkeit, sowie ihrer flexiblen und lichtdurchfluteten Innenarchitektur auszeichnet.
Wir bieten Ihnen hier Flächen von ca. 316 m²
(156 m² &160 m²) auf zwei Etagen, die unabhängig oder auch zusammen gemietet werden können.
Durch die großen Räume ist es möglich, hier in Zukunft eine Apotheke oder Arztpraxis, eine Fahrradwerkstatt mit Verkauf oder ähnliches, zu etablieren.
Auch diese Gewerbeeinheit verfügt, wie alle Einheiten in den Gebäuden, über eigene Parkflächen.
Live Kamera Bilder - 24 Stunden Aktualisierung - täglich ab 10 Uhr


Arbeiten
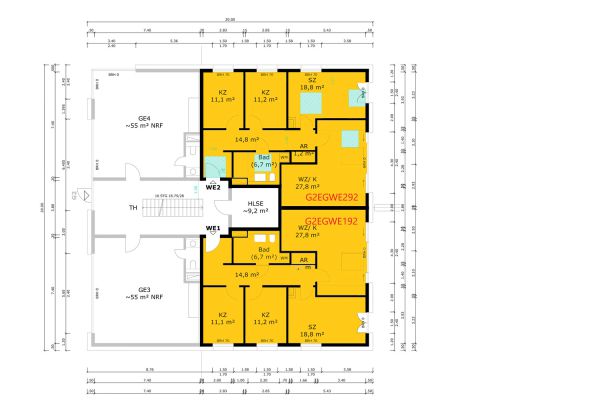
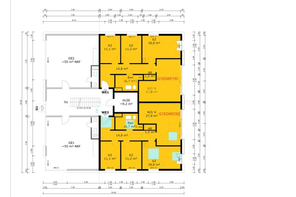
Die gewerblichen Einheiten in den kombinierten Wohn- und Gewerbeeinheiten sind der Neuendorfer Straße zugewandt und bieten durch ihre großen Fensterflächen und den direkten Zugang von vorn, ideale Voraussetzungen für die verschiedensten Gewerbe in den Bereichen Dienstleistungen, Handel oder ähnlichem.
Die Grundrisse dieser Einheiten können zurzeit noch in Absprache mit dem Vermieter definiert und den zukünftigen Bedürfnissen entsprechend festgelegt / angepasst werden. Wir bieten ihnen Einheiten in einer Größe von ca. 55,00 m² an.
![]() |
Wohnen
Die Wohneinheiten verfügen über eine Größe
von ca. 56 – 92 m² und befinden sich in südlicher Ausrichtung im EG sowie im OG.
Sie zeichnen sich besonders durch eine moderne Bauform mit großen Fensterflächen aus, die ein helles und großzügiges Wohngefühl vermitteln.
Jede Wohneinheit hat darüber hinaus eine
Terrasse (EG) bzw. Loggia (OG) und ermöglicht es den zukünftigen Mietern somit, Entspannung im Freien zu finden.
Die zweistöckige Architektur, im Zusammenspiel mit einer Fassade aus sibirischer Lärche, drücken die derzeitige Entwicklung des Ortes Borkheide als eine moderne, zukunftsorientierte Gemeinde aus, die trotzdem naturverbunden bleibt.
Leben und Erholen in Borkheide.
![]() |


